11253 Mount Emma DriveEnglewood, CO 80112
Due to the health concerns created by Coronavirus we are offering personal 1-1 online video walkthough tours where possible.



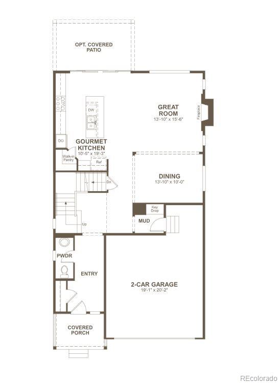
**!!AVAILABLE NOW/MOVE IN READY!!**SPECIAL FINANCING AVAILABLE**This Leah comes ready to impress with two stories of thoughtfully planned living spaces and designer finishes throughout. The open layout of the main floor is perfect for entertaining and showcases a formal dining room which opens to the expansive great room, where you can unwind and relax. A gourmet kitchen is sure to impress any level of chef featuring a quartz center island, large walk-in pantry and stainless steel appliances. Upstairs, discover a cozy loft and convenient laundry. Two generous bedrooms with a shared bath offer ideal accommodations for family or guests. The elegant primary suite is complete with a private bath and spacious walk-in closet. If that wasn’t enough, this exceptional home also includes a finished basement with a wide-open rec room and an additional bedroom with a shared bath.
14 hours ago | Listing updated with changes from the MLS® | |
16 hours ago | Price changed to $769,950 | |
4 weeks ago | Listing first seen on site |

The content relating to real estate for sale in this Web site comes in part from the Internet Data eXchange ("IDX") program of METROLIST, INC., DBA RECOLORADO real estate listings held by brokers other than Richmond Realty Inc are marked with the IDX Logo. This information is being provided for the consumers' personal, non-commercial use and may not be used for any other purpose. All information subject to change and should be independently verified.
Did you know? You can invite friends and family to your search. They can join your search, rate and discuss listings with you.