9036 S Shawnee CourtAurora, CO 80016
Due to the health concerns created by Coronavirus we are offering personal 1-1 online video walkthough tours where possible.




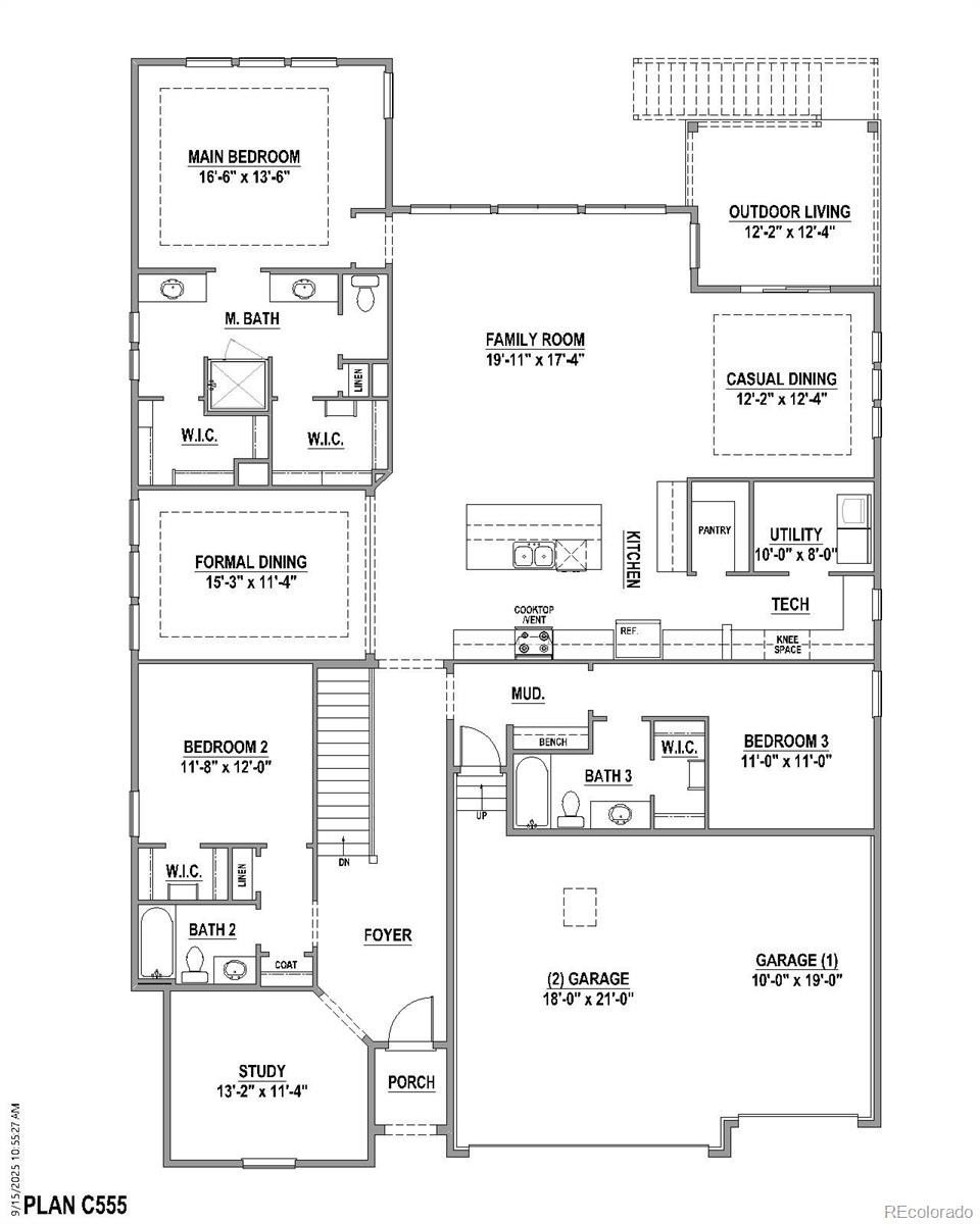
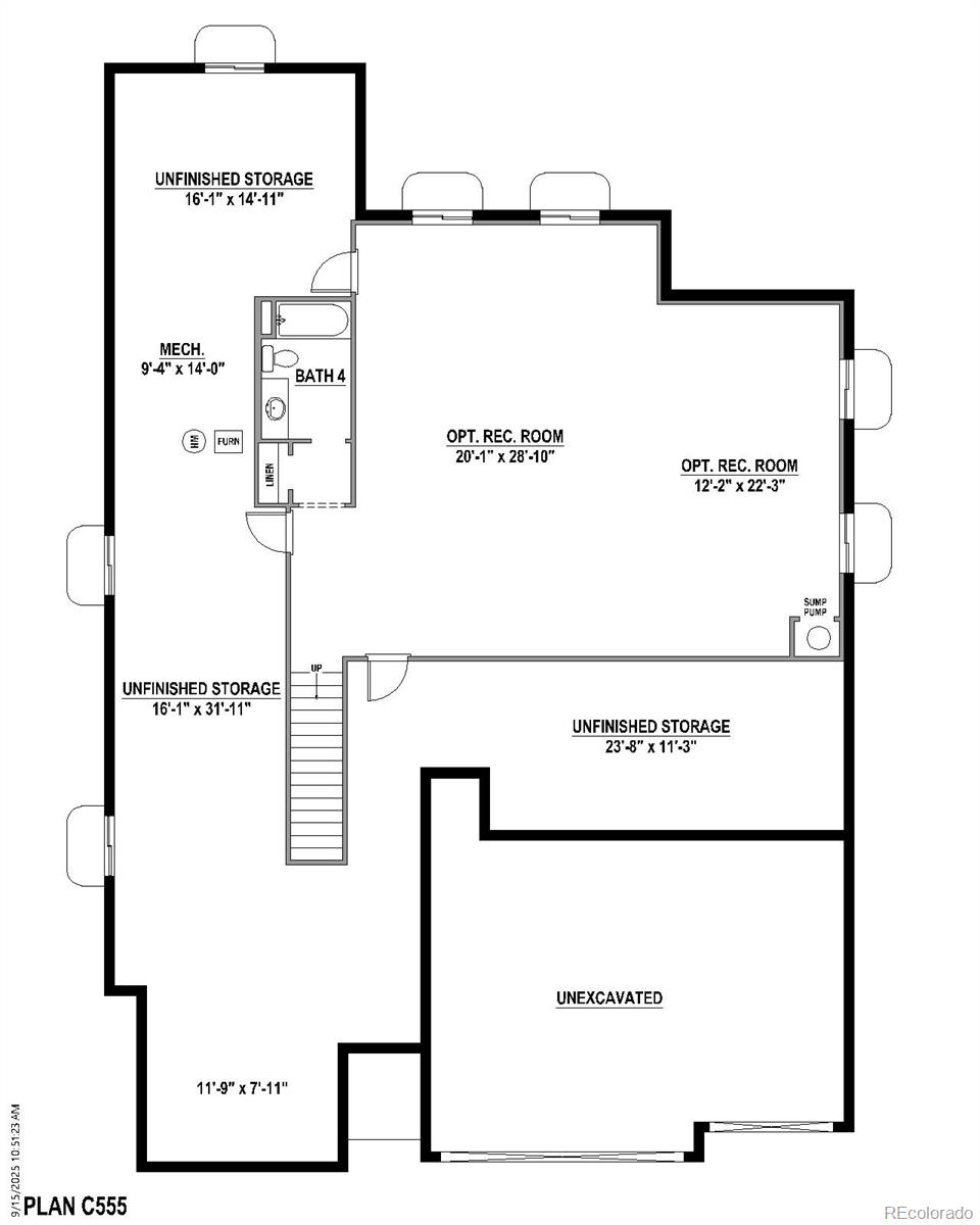
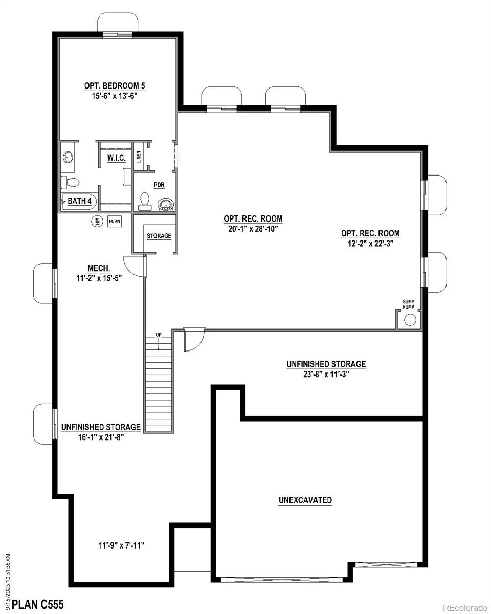
Step into this beautifully designed one-story home and experience a spacious, open-concept layout that perfectly blends comfort, style, and functionality. Upon entry, you're welcomed by a wide-open living space that seamlessly connects the family room, dining area, and a chef-inspired kitchen. The kitchen is a standout, featuring double ovens, abundant counter space, a large island with extra seating and storage, and a corner walk-in pantry perfect for keeping everything organized. A convenient built-in tech area provides the ideal spot for managing household tasks, working from home, or helping with homework. Designed for both privacy and convenience, the primary bedroom is situated at the back of the home and offers a relaxing retreat with an oversized shower, dual vanities, linen storage, and a generous walk-in closet. At the front of the home, you'll find a dedicated study with French doors, a secondary bedroom, and a full bath. A third bedroom with its own en-suite bath is tucked behind the kitchen. Just off the kitchen, a flexible space can be used as a game room, wine room, or formal dining area. With 3 bedrooms, 3 full bathrooms, a study, a tech area, a flex room, and a full unfinished basement, this home offers thoughtful design for modern living. Schedule your tour today!
4 weeks ago | Listing updated with changes from the MLS® | |
4 weeks ago | Listing first seen on site |

The content relating to real estate for sale in this Web site comes in part from the Internet Data eXchange ("IDX") program of METROLIST, INC., DBA RECOLORADO real estate listings held by brokers other than American Legend Homes Brokerage LLC are marked with the IDX Logo. This information is being provided for the consumers' personal, non-commercial use and may not be used for any other purpose. All information subject to change and should be independently verified.
Did you know? You can invite friends and family to your search. They can join your search, rate and discuss listings with you.